Álvaro Joaquim de Melo Siza Vieira III.
1980-86 | Banco Borges & Irmão | Vila do Conde | Portugal

Seminararbeit zur Vorlesung Ortsplanung | Wintersemester 1998/99
Institut für Regionale Bauwesen | Technische Universität Graz

Richard Dank

zum Inhalt







Inhaltsverzeichnis

  • Impressum
  • Einleitung
  • Álvaro Siza
    Curriculum Vitea
    Ausstellungen
    Wettbewerbe
    Auszeichnungen
    Interview
  • Banco Pinto & Sotto Maior | Oliveira de Azemeis
  • Banco Borges & Irmão | Oliveira de Azemeis
  • Literaturverzeichnis







  • Einleitung

    Alvaro Siza ist der beeindruckenste lebende Vertreter der portugiesischen Architekturszene. Bereits seine frühen Werke der Fünfzigerjahre waren bemerkenswert in ihrer Fähigkeit sich in die Landschaft einzufügen und sich als unmißverständliche Referenzpunkte zu etablieren. Doch es ist die durch die Jahrzehnte bestehende Gültigkeit der Gebäudesprache, die ihn zu einem so exzellenten Baukünstler machen.
    Sizas Gebäude sind irgendwo zwischen den zeitgenössischen Trends zur manieristischen bzw. zur rationalistischen Architektur angesiedelt. Sie besitzen ein relativ schlichtes Erscheinungsbild mit langgestreckten, glatten Oberflächen, aber einigen ihrer Details sind äußerst komplex. Der 1933 geborene Siza, Gewinner des Pritzer Preises 1992, übt entscheidenden Einfluß auf die zeitgenössische portugiesische Architektur aus. Sein respektvoller Umgang mit den Problemen des jeweiligen Kontextes hat ihn nicht vom Bau kraftvoller, moderner Gebäude abgehalten. Siza schreibt: “Wir verändern den Raum, wie wir uns selbst verändern – in einzelnen Teilen, wobei wir mit dem ´Anderen´ im Kollektiv und als Individuen konfrontiert werden. Die Natur, der Wohnort des Menschen und der Mensch, der Gestalter der Natur – beide absorbieren alles, nehmen es auf flüchtige Weise in sich auf oder stoßen es von sich ab, wobei alles seine Spuren auf ihnen hinterläßt. Ausgehend von einzelnen Teilen suchen wir den Raum, der die Teile in sich schließt.

    zurück zum Inhalt





    Álvaro Siza | Curriculum Vitae

    Geboren 1933 in Matosinhos, Portugal, studierte Álvaro Joaquim de Melo Siza Vieira III. von 1949-55 an der Schule für Architektur der Universität Porto (kurz: ESBAP). 1954 Gründung eines eigenen Büros und Fertigstellung seines ersten gebautes Projektes. Ab 1955 war Siza Mitarbeiter von Fernando Távora, mit welchem er 1958 eine Architektengemeinschaft einging. Später 1965-69 unterrichtete er als Dozent an der ESBAP bis er 1976 zum Professor für Baukonstruktionen berufen wurde.
    Weiters agierte er als Gastprofessor an der École Polithécnique Federal de Lausanne, der University of Pennsylvania, Universidad de Los Andes de Bogotá und der Graduate School of Design in Harvard, während er weiterhin an der Universität Porto unterrichtet. Siza hat auch an mehreren Vorträgen und Konferenzen in Europa, Amerika und Japan teilgenommen.

    zurück zum Inhalt



    Mitarbeiter im Büro | Álvaro Siza bei der Arbeit

    Álvaro Siza | Ausstellungen

  • 1975
    Kopenhagen | Dänemark
  • 1976
    Barcelona | Spanien
  • 1978
    Biennale in Venedig | Italien
  • 1979
    Milan | Italien
  • 1982
    Museum für Architektur in Helsinki | Finnland
    Alvar Aalto Museum | Finnland
    Centre Georges Pompidou | Paris | Frankreich
  • 1983
    Institute of Contemporary Arts | London | England
    Stichting Wonen | Amsterdam | Holland
  • 1984
    Technische Hogenschool | Delft | Holland
    ESBAP und Almada Negreiros Gallerie | Lissabon | Portugal
    IBA | Berlin | Deutschland
  • 1985
    Biennale in Paris | Frankreich
    Massachussetts Institute of Technology | Cambridge | USA
  • 1986
    9H Gallerie | London | England
  • 1987
    IBA | Berlin | Deutschland
    Columbia University | New York | USA
  • 1988
    Graduate School of Design | Harvard | USA
  • 1990
    Centre Georges Pompidou | Paris | Frankreich
    MOPU Galerie | Madrid | Spanien
  • 1991
    RIBA | London | England
    Colegio de Arquitectos | Sevilla | Spanien
  • 1992
    deSingel Galerie | Antwerpen | Belgien
  • 1993
    Rui Alberto Galerie | Porto | Portugal
    MOPU Galerie | Madrid | Spanien
  • 1994
    Colegio de Arquitectos | Granada | Spanien
    Sala do Risco | Lissabon | Portugal

    zurück zum Inhalt




  • Álvaro Siza | Wettbewerbe

  • 1980
    Schlesisches Tor | Berlin | Deutschland | 1. Preis
  • 1985
    Wiederherstellung des Campo di Marte | Venedig | Italien | 1. Preis
  • 1986
    Erneuerung des Casinos und des Café Winkler | Salzburg | Österreich | 1. Preis
    Expo 92 | Sevilla | Spanien
  • 1988
    Un Progetto per Siena | Italien
  • 1988-89
    Kulturzentrum La Defensa | Madrid | Spanien | 1. Preis
  • 1989-90
    Bibliothèque de France | Paris | Frankreich
  • 1993
    Helsinki Museum | Finnland

    zurück zum Inhalt




  • Álvaro Siza | Auszeichnungen

  • 1982
    Architekturpreis der Portugiesischen Abteilung der Internationalen Vereinigung der Kunstkritiker
  • 1987
    Auszeichnung der Portugiesischen Architektenvereinigung
  • 1988
    Goldmedaille der Consejo Superior de los Colegios de Arquitectos | Madrid | Spanien
    Goldmedaille der Alvar Aalto Stiftung
    Prince of Wales-Preis in Städtebau der Harvard University
    Preis für Europäische Architektur der Europäischen Union | Fundación Mies van der Rohe | Barcelona
  • 1992
    Pritzker Prize der Hyatt Stiftung Chicago
    Ehrendoktorat der Universität Valencia
  • 1993
    Nationalpreis der Architektur der Portugiesischen Architektenvereinigung
    Ehrendoktorat der École Polithécnique Federal de Lausanne

    zurück zum Inhalt







  • Banco Borges & Irmão vom Hinterhof aus gesehen | Detail des Lifts

    Álvaro Siza | Fragen zur Bank in Vila do Conde

    Es ist verwunderlich, daß man die Argumente, die Sie zur Erklärung Ihrer Arbeiten verwenden, fast als marxistisch bezeichnen könnte, zumindest eher als poetisch oder humanistisch. Wie erklären Sie, innerhalb dieser grundlegenden Struktur, die expressionistische Geste Ihren zwei Banken in Oliveira de Azemeis bzw. in Vila do Conde?

    Die Banco Pinto & Sotto Maior in Oliveira de Azemeis ist ein sehr rigoroses, strenges Projekt. In den Zeichnungen findet sich eine Art regulierendes Layout, welches die Räume definiert und kontrolliert. Was vielleicht expressionistisch wirkt, ist in Wirklichkeit sehr geometrisch geordnet. Die gekrümmte Form folgt einer kontinuierlichen Linie der vorausgehenden Forschung aus Wettbewerbseinreichungen und ungebauten Projekten. Ich habe dieses Hauptanliegen entwickelt, wahrscheinlich nach der Entdeckung von Alvar Aalto und Frank Lloyd Wright, deren Publikationen zu dieser Zeit gerade ihre Verbreitung in Portugal fanden. Aber der fundamentale Grund für diese verzerrten Geometrien ist den Zugang von Licht in den Innenhof des angrenzenden Hauses zuzulassen – ein großartiges Haus aus dem 17. Jahrhundert, welches die Bank mit dem Grundstück miterworben hat. Das war die erste Idee, die aber später noch durch andere Absichten ergänzt wurde, wie zum Beispiel die Schaffung von Raumkonfigurationen, die den Eindruck der inneren Dimension noch zusätzlich verstärken. Kurz vor dem Abschluß der Entwurfsarbeit, habe ich noch die Cambridge Libary von James Stirling gesehen und war davon sehr beindruckt.
    Bei der Banco Borges e Irmão in Vila do Conde hatte die Krümmung einen anderen Ursprung. Die Auftraggeber wollten ein Gebäude mit einer gewissen Präsenz, wobei aber die Frontfassade zu schmal für irgend etwas signifikantes war. Die Kurve erzeugt eine Vergrößerung des Maßstabs der Hausfront durch die Miteinbeziehung der seitlichen Mauer. Weiters war es unverzichtbar, einen Zugang zum neuentstandenen Platz auf der Rückseite zu schaffen, wobei die Krümmung als Öffnung zum öffentlichen Raum dient.

    zurück zum Inhalt







    Die ästhetischen und funktionellen Grundsätze nach denen Siza die Bank in Vila do Conde entworfen hat, stehen am Ende einer Entwicklung, die bereits in der Banco Pinto & Sotto Maior ihren Ausgang haben.

    1971-74 | Banco Pinto & Sotto Maior | Oliveira de Azemeis | Portugal

    Projektassistenten: António Madureira, Francisco Guedes de Carvalho, Adalberto Dias, Nuno Ribeiro Lopes

    Die Bank ist an der Hauptstraße in Oliveira de Azemeis gelegen, gegenüber einem kleinen öffentlichen Platz, der zwei Ebenen der Stadt verbindet. Die gebaute Form kommuniziert mit seiner Umgebung – ein Haus aus dem 17. Jahrhundert, dem Gerichtsgebäude und ein rundes Eckgebäude im Osten. Trotz des morphologischen Bezugs zu den Formen und Bewegungsmustern der Umgebung bleibt die architektonische Sprache der Bank dissonant und unabhängig. Diese Strategie sichert einen Grad der Autonomie für das neue Gebäude innerhalb des alten Stadtgefüges.
    Der Eingang zur Hauptschalterhalle ist tangential zum städtischen Platz angelegt. Drei ansteigende Kurven artikulieren die verschiedenen Räume und Fußbodenebenen innerhalb dieses offenen Volumens. Eine mit Marmor verkleidete Treppe führt zu zusätzlichen Bankbereichen im zweiten Geschoß. Die Büros und Archive des obersten Geschosses werden durch Dachfenster belichtet.
    Die urbane Sittuierung dieser kleinen Bank bedingt ihre Volumsformen. Die Referenzpunkte dieser Geometrie findet man in der architektonischen Physiognomie des Platzes. Die Einheit dieser Struktur ist ein Produkt der ansteigenden Kurven, welche das Auge allmählich zur Glaswand im Obergeschoß führen.
    Das Projekt ist außerdem von großer Wichtigkeit, da ein weiterer Entwurfsgedanke die von Siza entwickelten Serien von Schemata waren. Diesen kreativen Prozeß führte Siza während der Siebziger und Achtziger öfter und bei mehreren Wettbewerben weiter. Der Einfluß dieser dadurch entstandenen Sprache ist nicht nur in Nordportugal, sondern in ganz Europa fühlbar.

    zurück zum Inhalt



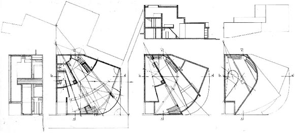
    Schnitte und Grundrisse mit überlagerten Konstruktionsschemata



    Dachdraufsicht und Ansichten | verschiedene Fassaden



    Innenraumdetails | Hauptportal







    1980-86 | Banco Borges & Irmão | Vila do Conde | Portugal

    Projektassistenten: Miguel Guedes de Carvalho, Eduardo Souto de Moura, Maria Manuela Sambade, Nuno Ribeiro Lopes, Luiza Penha

    Die Geschichte des Entwurfs der Bank (von den ersten Versionen zweier gegenüberliegender Gebäude von 1969-74 auf einem anderen nahegelegenen Grundstück bis zur endgültigen, realisierten Version) zeigt wie das zentrale Anliegen eines hohen Schalterraums sich durch die gesamten Vorschläge zieht. Bis zum allerletzten Augenblick ließ Siza die Möglichkeit für Veränderungen offen. Im endgültigen Entwurf lassen sich alle raumgestalterischen Ideen ablesen, mit denen er während der Entwicklung des Gebäudes experimentiert hat.
    Die Bank liegt in dem historischen Zentrum von Vila do Conde eingebettet in ein steinernes Gefüge, das durch monumentale Gebäude aus Stuckmauerwerk und Granit bestimmt wird. Ein Flächennutzungsplan, der diesem Projekt vorangegangen war, hatte das Gebiet grundlegend umgestaltet. Er sah eine neue piazza zwischen den Gärten der Häuser vor, die von einer ebenso neuen Straße aus zu erreichen sein sollte. Das längliche Grundstück in der Rua 25 de Abril liegt nun gegenüber dem mit Bäumen umsäumten, rechteckigen Marktplatz und an dieser neuen leicht ansteigenden Seitenstraße, die ins Innere eines riesigen Häuserblocks führt, welcher als neues kulturelles Zentrum der Stadt geplant ist. Somit sitzt das Bauwerk - das erst durch den Abbruch des Altbestands entstehen konnte - am Eck einer Kreuzung, in einem Zwickel, ähnlich der Bank in Oliveira de Azemeis. Der Platz, sowie die ganze Umgebung werden vor allem durch die Matriz Kirche und das Santa Clara Kloster dominiert. Somit hat die Bank auch wichtige städtebauliche Funktion und Wirkung.

    zurück zum Inhalt



    Lageplan | Situierung im städtebaulichen Kontext



    die Bank im Altstadtensemble

    Siza übersetzt die lokale historische Bautradition in die Gegenwart: der Kontrast zwischen den großen Glasflächen und der schweren Massivwand, der prismatische Puritanismus und die weiße Farbgebung sind eine optisch attraktive Bereicherung des Ortes. Das Volumen der Bank ist aber den restlichen Baumassen die an der Hauptstraße liegen angepaßt, und die Borges & Irmão Bank fügt sich auch nicht zuletzt deshalb so gut in das Ensemble der umliegenden Gebäude ein – trotz ihres “fremdartigen” Aussehens. Es ist gerade dieser Stil der bewußten Kontrastierung mit der nächsten Umgebung, der es der Architektur von Siza ermöglicht, eine Beziehung zur Innenstadt aufzubauen. Die gesamte Arbeit schafft eine Verbindung der Maßstäbe, welche einen Dialog mit der Stadtstruktur und den umliegenden Monumenten eingeht und gleichzeitig distanzierend auf diese Beziehungen wirkt. Diese Ambivalenz entspricht ganau dem Gebäude und seinem kulturellen Platz innerhalb der Stadt. Siza bearbeitet die frühere grundlegende Struktur dieser schmalen Parzelle, überlagert sie mit seinen formalen Vorstellungen und verwirklicht eine neue, eigene Architektursprache, die aber immer traditionellen, auf die Situation bezogenen Charakter hat.

    zurück zum Inhalt



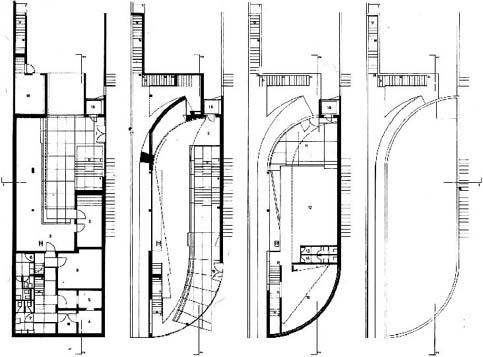
    Grundrisse

    Das Gebäude hat rationelle Grundlagen; die Innenräume und die verbindenden Treppenhäuser unterstreichen dieses, ungeachtet der ins Auge fallenden Kümmungen des Schaltertisches, der profilierten Decke, der Außenmauern und der Rampe. Die Bank von Vila do Conde gehört zu einer Entwurfsreihe von Bankgebäuden. Sie bietet eine Art Anthologie formaler und methodischer Hinweise auf Sizas frühere Werke. Es führt die funktionalen und formal-geometrischen Anliegen, welche schon in der Bank in Oliveira de Azemeis erstmals prononciert wurden, konsequent weiter. In diesem Entwurf hat Siza versucht, seine Formensprache durch die Verwendung elementarer Volumen und glatter Oberflächen auf das Wesentliche zurückzubringen. Die Komplexität wird durch eine ungewöhnliche Anhäufung verschiedeneer räumlicher und figurativer Themen erreicht. Nur wenig des Bankinnenraumes wird nach außen hin enthüllt, aber auch nur wenig des Inneren bleibt komplett privat. Alle Ebenen stehen visuell miteinander in Verbindung, was an die Villa Carthage von Le Corbusier erinnert. Das Ergebnis ist eine außerordentliche Dichte an visuell beeindruckenden, raumgestalterischen Ereignissen. Trotz seines geringeren Umfangs wetteifert das Projekt mit den größeren städtischen und religiösen Monumenten der Innenstadt.

    zurück zum Inhalt



    die zwei verschiedenen Fassaden

    Das Bauwerk besteht aus einem Hauptblock, umgeben von Rampen, Treppen und Zugangswegen. Durch die abgerundeten Ecken entsteht der Eindruck als gäbe es nicht vier, sondern zwei durchlaufende Fassaden. Diese sind sehr unterschiedlich. Die Nordwestfassade ist glatt gehalten und bildet mit den Fenstern, der Marmorverkleidung und dem weißen Putz ein Ganzes. Die Südostfassade ist belebt durch eine Rampe, eine Treppe, eine zurückversetzte verglaste Wand, eine verglaste Ecke im oberen Geschoß und einem tranparenten Aufzug, der über die gesamte Höhe des Gebäudes führt. Die Transparenz der verglasten Wand ermöglicht es, das Bewegungssystem im Innern des Gebäudes deutlich erkennen. An der Außenseite des Bauwerks setzt sich die Marmorverkleidung an der Wand, auf den Stufen und seitlich der außen gelegenen Treppen fort. Der Marmorfußboden des öffentlichen Atriums im Gebäude wird bis nach außen weitergeführt.

    zurück zum Inhalt



    Längsansichten



    Schnitte und Ansichten

    Die Aktivitäten der Bank sind auf vier verschiedenen Ebenen organisiert, wobei jedes Geschoß einen öffentlichen Zugang hat. Die Schließfächer- und Tresoranlagen befinden sich im untersten Geschoß mit hofseitiger Zufahrt. Die Hauptschalterhalle liegt darüber – ebenerdig von der Straße bzw. vom Platz aus erschlossen. Die Kreditabteilung und die sonstigen administrativen Räumlichkeiten sind im ersten Obergeschoß situiert, welches sowohl von der Straße aus per Rampe als auch über die Treppe vom Innenhof aus erreichbar ist. Das Dachgeschoß bietet einen tollen Blick, über die interessante städtische Anlage von Vila do Conde. Diese Räume stehen durch ein System innerer und äußerer Zirkulation - ein ausgeklügeltes Treppen- und Rampennetzwerk - in ständiger Verbindung. Diese Bewegungen und die dadurch entstehende Interaktion kombiniert mit der einzigartigen gekrümmten Form definierten die öffentlichen und privaten Bereiche.

    zurück zum Inhalt



    Obergeschoß | Hauptschalterhalle | Untergeschoß



    Raumdetails

    Das Innere des Gebäudes wird bestimmt durch eine Reihe verblüffender Effekte, die zu den statischen Eigenschaften eines orthogonalen Entwurfs im Widerspruch zu stehen scheinen – stimmt aber nicht. Hierzu zählt die Abrundung der Ecken, die Publikumsbewegung entlang des Schalters bis zur Treppe, die Asymmetrie der verglasten Oberflächen, die divergenten Bewegungen der Decken und die unterschiedlichen Wandverkleidungen. Siza hat durch diverse vorangehende Projekte und die lange Planungszeit einen nahezu perfekten Entwurf abgeliefert und bis hin zur Fertigstellung betreut.
    Die Borges & Irmão-Gruppe versucht durch die Beauftragung namhafter Architekten ihren Filialen ein prägendes Aussehen zu verleihen. Anstatt immer wiederkehrender Motive oder Farben wie dies andere Konzerne machen – die sogenannte Corporate Identity - will sich diese Bankenvereinigung durch die Patronage hochwertiger Baukunst in der Öffentlichkeit präsentieren und dadurch ihr Image manifestieren. Siza´s Bau schafft diese Anforderung an Funktion und Ästhetik bravourös. Trotzdem ist es fragwürdig ob sich angesichts der allgemein konservativen Haltung des Kunden diese Art des Marketings durchsetzen wird – zu wünschen ist es.

    zurück zum Inhalt



    Außenraumdetails



    Innenraumdetails



    innere und äußere Erschließung







    Literaturverzeichnis und Quellen der Abbildungen

  • Cecilia, Fernando Márques Hrsg.; Levene, Richard C. Hrsg., El Croquis 68/69. Álvaro Siza 1958-1994 Zeitschrift, Madrid, 4/1994
  • Fleck, Brigitte, Álvaro Siza, Basel, 1992
  • Llano, Pedro de Hrsg., Álvaro Siza, Madrid, 1995
  • Nakamura, Toshio Hrsg., a+u 1989 June Extra Edition. Álvaro Siza 1954-1988 Zeitschrift, Tokyo, 6/1989
  • Ploeg, Stina van der Hrsg., Mies van der Rohe Preis für europäische Architektur Begleitschrift, Basel, 1990
  • Santos, José P. dos Hrsg.; Testa, Peter Bearb., Álvaro Siza, Barcelona, 1993
  • Testa, Peter, Álvaro Siza, Basel, 1996
  • The Pritzker Architecture Prize. 1992. Álvaro Siza Begleitschrift, Los Angeles, 1992
  • Trigueiros, Luiz Hrsg., Álvaro Siza, Lisboa, 1995


    zurück zum Inhalt